以前着工の時にお知らせいたしました奥沢1丁目『漆喰の家』の内覧会を開催いたします。
開催日:令和元年9月28日(土曜日)
10:30~17:00
所在地:東京都世田谷区奥沢1-27-12
現地にて、1級建築士が建築やリフォーム相談を承ります。
自宅の建て替えや、これから土地を探し新築をお考えの方や自宅のリノベーションをお考えの方など、お気軽にお立ち寄りください。
今回内覧会を開催する『漆喰の家』は
1.外壁漆喰仕上
2.外壁通気工法
3.耐震等級3、且つ制震装置設置の制震構造
4.断熱等級4相当(2020年基準クリア)
5.床材:無垢フローリング
が標準仕様ですが、今回は5番目の床材について他の仕上げでチャレンジいたしました。
- 外観
- 地階玄関ホール
- 地階寝室
地階床:450~600角タイル貼り、1・2階床:高級フローリング(オーク突板)で施工いたしました。
敷地は奥沢の高台で東斜面の中腹の立地なので、2階からの東側の見晴らしが最高です。近くには東京工業大学の広大なキャンパスの森も見え、都会の中のオアシス感が満喫できます。
- LDK
- LDK
- LDKキッチン周辺
- 洗面から浴室を見る
- 玄関ホール
- エントランス
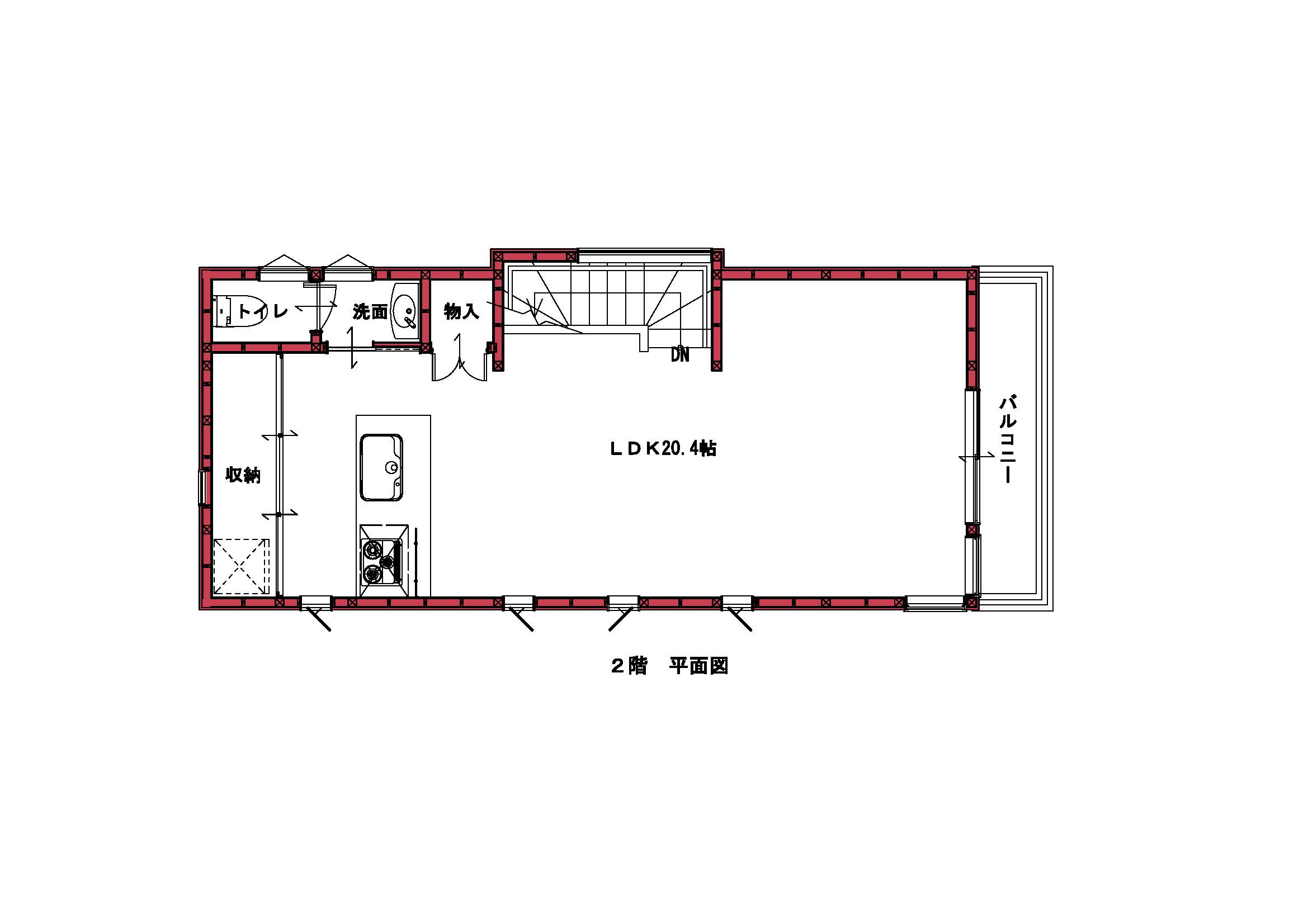
間取りは3LDK、地下1階、地上2階建て、地下が鉄筋コンクリート構造、1・2階が木造です。
- 地下1階平面図
- 1階平面図
- 2階平面図
都市規制:第1種低層住居専用地域、第1種高度地域、準防火地域
土地面積:80.81㎡、24.44坪
建築面積:39.75㎡、12.02坪
地下1階:44.74㎡、13.53坪
1 階 :39.75㎡、12.02坪
2 階 :39.75㎡、12.02坪
延べ床面積:124.24㎡、37.58坪
建蔽率:49.19%、容積率:98.38%
建物や建築についてのお問い合わせは、弊社ホームページより、又は直接本社にお問い合わせください。
℡03-377-1101(代)
又、この物件はカドヤ建設のモデルルームとして数回の内覧会を行った後は、分譲住宅としてお客様に売却いたします。
売却についての詳しい内容は下記東急リバブルのホームページをご覧ください。
東急リバブル自由が丘センター 担当:松尾まで
https://www.livable.co.jp/kodate/CXJ192038/?from=property_list
BY NOGUCHI












