■概要
M様とは、かれこれ30年にわたるお付き合いがあり、自宅の工事をはじめ、数々のリフォームやメンテナンス工事もご依頼いただいております。今回ご依頼いただいた物件は、弊社で36年前に新築した地上4階建ての鉄筋コンクリート(RC)造集合住宅です。これまでも、M様とは信頼関係を大切にしながら、お住まいや賃貸物件のあらゆる工事を一緒に進めてまいりました。そんな長年のお付き合いの中で、今回は、空室となった賃貸住戸の原状回復リフォームをご相談いただきました。前入居者様が大切に使われていたこともあり、大きな傷や劣化は見受けられませんでした。しかし、給湯管などの設備は、建築当時に一般的だった銅管が使用されており、築年数を考慮すると、漏水リスクが非常に高くなっていることは否めません。配管の劣化による漏水は、階下の部屋への影響も大きく、居住者様に多大なストレスを与えるばかりか、オーナー様にとっても大きな修繕費用が発生するリスクがあります。また、工事業者側も通常の2倍以上の労力が必要となるため、早めの更新が非常に重要です。
今回の改修工事は、まさに絶好のタイミングでした。加えて、時代の変化に伴う入居者ニーズを反映し、ただ直すだけでなく、今後の入居促進を見据えたアップデートも実施することに。空室が出るたびに、同様のプランでブラッシュアップを図る方針としました。
打合せには、オーナー様と共に、管理・仲介を担う不動産会社様もご同席いただき、3者で「入居率を高めるためにはどうするべきか」を徹底的に議論。各専門家の視点を持ち寄った、非常に密度の濃いプランニングとなりました。
■建物概要
場所:東京都大田区
マンション構造:鉄筋コンクリート造(RC)
用途:賃貸集合住宅
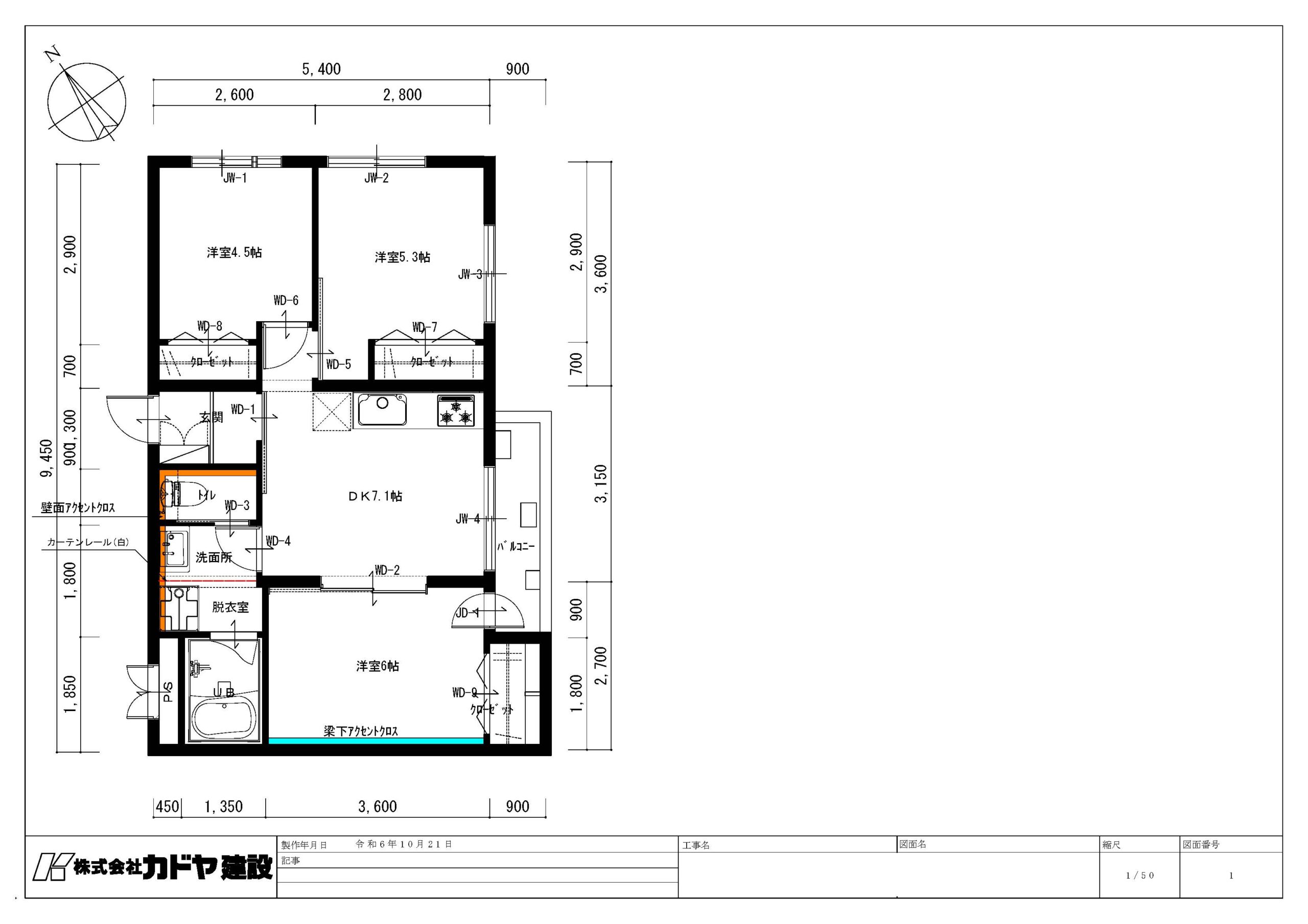
対象物件:図面参照
面積:52㎡
工期:約1か月
- 提案図面
■お客様のご要望(抜粋)
オーナー様より、下記のような具体的なご要望をいただきました。
・給排水設備改修について
・玄関収納を大容量にし、ブーツやハイカットスニーカーも収納できるようにしたい。
・朝出かける前に全身が映る鏡がほしい。
・将来を見据え、エアコンの先行配管を設けておきたい。
・クローゼットのレールを撤去し、フラットな床で、天井高いっぱいの扉にしたい。
・リビングはダウンライト+スポットライト仕様にし、調光できるようにしたい。
・クローゼット内部は、自由に位置変更できる可動棚仕様にしたい。
・キッチンのレンジフードをフラットタイプに交換したい。
・バスルームの鏡をワイドミラー仕様にしたい。
・トイレに小物収納棚を設置したい。
・洗面台は、鏡裏収納タイプにして収納力をアップしたい。
・リビングと和室の壁(構造壁)は解体して開放的な空間にしたい
これら一つ一つのご要望に丁寧に向き合い、最適なプランをご提案しました。
■給排水設備改修について
築年数が30年を超える集合住宅では、特に給湯管に銅管が使用されているケースが多く見られます。経年劣化により銅管にピンホール(小さな穴)が生じ、そこから漏水するリスクが高まります。漏水が発生すると、下階の部屋まで影響が及び、被害の範囲が拡大してしまう恐れがあり、費用負担も非常に大きなものとなります。そのため、空室となったタイミングで、積極的に給排水設備の更新を検討することをお勧めしています。本物件では、置床工法(いわゆる二重床)が採用されていたため、床下の配管交換も比較的スムーズに対応可能でした。必要最低限の開口で新しい配管を配置し、コスト・工期ともに抑えながら、リスクを低減しました。なお、既存の配管は大規模な床剥がしが必要となるため、撤去は行わず、将来的なメンテナンス性も考慮した設計としています。
- 施工前
- 施工中
- 脱衣場
■玄関収納を大容量にし、ブーツやハイカットスニーカーも収納できるようにしたい。
大きさにもよりますが、同じ同程度の㎡数の賃貸物件の多くは、10足程度の収納で、かつ、短靴の収納を想定しており、ブーツやハイカットスニーカー等は収納できないことがございます。既存の下駄箱も奥行が狭く、既製品で適合する物は少なく、既存品は造作の下駄箱でしたので、9足おけるのがやっとでした。こういったこともあり、今回のケースでは、奥行に余裕がなかったため、スリムな薄型タイプ※(横置き仕様で22~33足収納可能)の下駄箱を採用しました。※奥行380~400が通常サイズで、薄型は300となります。
- 施工前
- 施工中
- 玄関収納
■朝出かける前に全身が映る鏡がほしい。
こちらも賃貸のケースとして珍しいかもしれませんが、借主の方で全身鏡を希望される方は非常に多いです。特に最近はSNS等の影響もあり、自撮りする方が非常に多いこともあり、朝出かける前の身支度には、うってつけといえるでしょう。今回は、玄関収納の扉に設けられているタイプを採用したので、靴の収納も増えて一石二鳥といえます。
- 玄関
- 玄関収納
■将来を見据え、エアコンの先行配管を設けておきたい。
洋室一部屋のみエアコンが設けられていないため、いつでもエアコンが設置できるように先行して配管を設けるようにしました。今回の工事の様に、弊社ですべて工事を行う場合は、問題ございませんが、何年かして、エアコンを取り換える事になった場合、仮に、他業者や家電量販店等が取り付ける場合、これらの配管を行っていない場合はそもそも取付自体を行えないケースという事がございますので、先行配管を設ける形で進行しました。※最近ではエアコン専用回路を設けていない場合も同様に、取り付けが不可の場合がございます。
- 施工前
- 施工中
- 施工後
■クローゼットのレールを撤去し、フラットな床で、天井高いっぱいの扉にしたい。
現在は、リモート需要もあり、実は、この扉を外して、収納部分を部屋のスペースの一か所と想定し、この部分に机等を置いて有効活用される方もいらっしゃいます。これは、レールが下にある状態では椅子を収納するときにガタガタしてしまうため、そういった仕切りを設けないで、あくまでもフラットなシームレスな状態にすることがポイントです。これらの有無により、印象が全く異なるため、今回は、こういったことも考慮し、天井高さいっぱいの扉とし、仕切りレールがないようにプランニングしました。
- 施工前
- 施工中
- 施工後
■リビングはダウンライト+スポットライト仕様にし、調光できるようにしたい。
ダウンライトといいますと、温かみのある暖色系(オレンジ色)で、リラックスするムードにはピッタリといえますが、何か作業する時等(机で勉強、書き物等)は光による陰影があり、作業しづらいという点もあります。そんな悩みを解決するのが、調光調色タイプのライトとなります。作業する時は昼光色(青白い)とし、リラックスしたい時や、夕食時等は暖色系に切り替えるなどといった時間帯やシチュエーションに応じた雰囲気づくりが可能になり、住まいの快適性が一段と向上します。また、照明器具を交換する際には、既存の天井をすべて剥がして配線をやり直す場合もありますが、今回は既存の構造を活かしつつ、最小限の作業で美しく仕上げました。これにより工期短縮とコスト削減を実現しています。
- 施工前
- 施工中
- 施工後
■クローゼット内部は、自由に位置変更できる可動棚仕様にしたい。
賃貸の場合だと固定棚というケースがほとんどかと思います。可動棚にすることで、住む人の用途やニーズにあわせてフレキシブルに変更することが出来ます。
- 施工前
- 施工中
- 施工後
■キッチンのレンジフードをフラットタイプに交換したい。
細かなところですが、レンジフードにも色々な種類があり、プロペラファンが表しになっているタイプや、少しカバーが大きいタイプ等があります。今回採用したレンジフードはスリムな形状で収納棚との一体感があり、デザイン性が高く、入居を決める際のプラスポイントになります。
- 施工前
- 施工中
- 施工後
■バスルームの鏡をワイドミラー仕様にしたい。
ユニットバスの賃貸は多いと思いますが、鏡については、多くの場合、縦長で、かつ簡易的な仕様のものが多いのが一般的です。また、壁の色についても白等で統一しているパターンが多いといえますが、アクセントや全面を色柄で選定し、さらに、鏡ををワイド仕様にすると、一気に高級感が増し、デザイン性も高く、少しの値段アップで、入居を決める際のプラスポイントになります。
- 施工前
- 施工中
- 施工後
■トイレに小物収納棚を設置したい。
トイレットペーパーや、清掃用品等、ちょっとしたものでも収納できるだけで印象がかなり変わります、この部分を突っ張り棒等で入居者の方に用意していただくという事もできますが、突っ張り部分の壁側にテンションがかかり、石膏ボードがへこんでしまい、壁紙張替える事になり、結果収納棚設置するより高くついてしまう事等あるので、収納がない場合には、退室の際に新たに設置して頂く事を推奨します。
- 施工前
- 施工中
- 施工後
■洗面台は、鏡裏収納タイプにして収納力をアップしたい。
賃貸の洗面化粧台の多くは収納部分が表しになっているタイプが多いケースがございますが、こちらもあまり生活感をださないために鏡裏に収納できるタイプを採用されるケースがここ最近増えてきております。また、賃貸の場合、洗面化粧台でいえば、水栓がシャワー水栓になっているかどうかも重要な事です。シャワー水栓でホースの着脱式になりますと、ボウル内の清掃を行う際や、洗面化粧台で洗髪するなどといった用途がございます。たかが、水栓や収納ですが、こういった細かな部分を配慮するかどうかで入居率にも大きくかかわってくる部分といえます。
- 施工前
- 施工中
- 施工後
■リビングと和室の壁(構造壁)は解体して開放的な空間にしたい
大きなワンルーム空間を作ることは多くの方が希望されますが、RC造や鉄骨造の建物では、構造上壊してはならない耐力壁が存在します。今回の物件でも、リビングと和室の間には耐力壁があり、取り払うことはできません。ただし、見せ方を工夫することで、圧迫感を最小限に抑え、空間のつながりを意識したデザインに仕上げています。安全性とデザイン性を両立させるのが、プロフェッショナルの腕の見せどころです。
- 施工前
- 施工中
- 施工後
■施工後写真ギャラリー
- 施工後
- 脱衣場
- 施工後
- 施工後
- 洋室
- 洋室
- 洋室
- 洋室
- 洋室
- 施工後
- 洋室
- 洋室・リビング
- リビング
- 施工後
- 玄関収納
- 玄関
■まとめ
今回のリフォームにより、新たな息吹がこの住戸に吹き込まれました。エレベーターのない4階建ての建物でありながら、完成直後にファミリー層のご入居が決定したとの嬉しいご報告も受けております。オーナー様、不動産会社様、そして弊社が一丸となり、入居者目線で考え抜いた成果が、早期入居という形で実を結びました。築年数の経った物件でも、しっかりと手を入れ、時代にあった空間づくりを行うことで、入居率アップと資産価値の維持向上を目指すことが可能です。
空室対策でお悩みのオーナー様、配管類からすべて一新したいとお考えの方ぜひ一度、弊社にご相談ください。
弊社には、1級建築士・宅地建物取引士・1級施工管理技士・1級管工事施工管理技士・熟練の大工が在籍しており、様々な専門的視点から、お客様のお悩みに最適なご提案をいたします。
「小さな工事だから頼みにくい」そんなご心配も不要です。弊社では、賃貸物件の原状回復工事を年間200件以上手がけており、ルームクリーニングやエアコン洗浄、パッキン交換、建具の微調整、クロスの部分補修など、小さな工事にも迅速・丁寧に対応しております。お住まいや賃貸物件に関するお困りごとがありましたら、どんなことでもお気軽にご相談ください











































