BLOGBLOG
新築計画『漆喰の家』続き~1~

GWも終わり、前回からだいぶ間があいてしまいましたが、当時の工事状況を振り返りつつ、深沢分譲の近況を ご報告させて頂きます。
(前回の記事はこちら、『漆喰の家』についてはこちら)
前回は、屋根工事の最中のこの写真で終わりましたが、ここから屋根工事を一気に載せていきます!
- 屋根工事下地
- 屋根工事下地(建物内部からの様子)
- 屋根工事(アスファルトルーフィング張り)
- 屋根工事(スレート葺き仕上げ)
- 外壁工事(透湿防水シート、ラス網張り)
足場に上らないと分からない工事状況の写真なので、初めて見られる方が多いかと思いますが、建物の屋根はこのようにして作られていきます。
当たり前ですが、地球上では水は高い方から低い方に流れますので、水下から施工していきます。屋根の仕上げが違う場合でも、大抵の場合はルーフィングを張ります。つまりこのルーフィングが最終防水ラインであり、一番重要なのです。
そして雨漏れの原因は、主に一次防水という屋根本体(今回でいうスレート葺き)の劣化、破損または二次防水という防水シートの劣化(今回でいうアスファルトルーフィング)になります。常に雨風にさらされ続ける場所であり、日本の四季の変化を考えれば、定期的にメンテナンスが必要な事は言うまでもありません。弊社でも屋根修理、瓦等の葺き替えに対応しておりますので、気になった方はお気軽にお声掛け下さい。
話がそれましたが、次は外壁工事になります。
外壁は、この新築計画の名前の由来でもある、漆喰仕上げになります。(『漆喰の家』は外壁に漆喰、内装の床に無垢フローリングを使うことをコンセプトに計画しています。詳しくはブログ上部リンクの『漆喰の家』からどうぞ)
今回は外壁通気工法なので、外壁の下地と仕上げの間に空気の通り道となる、空気層が必要になります。なのでその通り道を確保する為に、凹凸のあるプラスチックのシートを防水シートの上に張ります。その上に、ラス網という金属製の網を張り巡らせ、漆喰を塗りこんでいきます。漆喰は、下塗りをした後に、二度上塗りをして仕上げるのが一般的になります。なので下塗りをこの網の上から塗るのですが、プラスチックシートの凹凸によって隙間ができ、そこで空気の層ができるという仕組みになっています。
上部写真の、灰色のパッキンをして塞いである部分が通気する部分になります。
これが屋根との縁が切れる部分(バルコニーや屋根の軒等と外壁がぶつかる部分)に設けられています。細かい部分ですが、建物の状態を長く保つには欠かせません。
以上が深沢分譲住宅の近況報告になります。ご覧頂きありがとうございました!
次回はいよいよ外回りではなく、建物の内装について書かせていただきますのでお楽しみに。次回もよろしくお願い致します!
BY OZAWA
~深沢分譲住宅~
完成予想パース
- 外観パース
- 外観パース
- 1階リビングダイニングキッチン
- 2階洋間
- 2階階段室と廊下
- 2階北側洋間
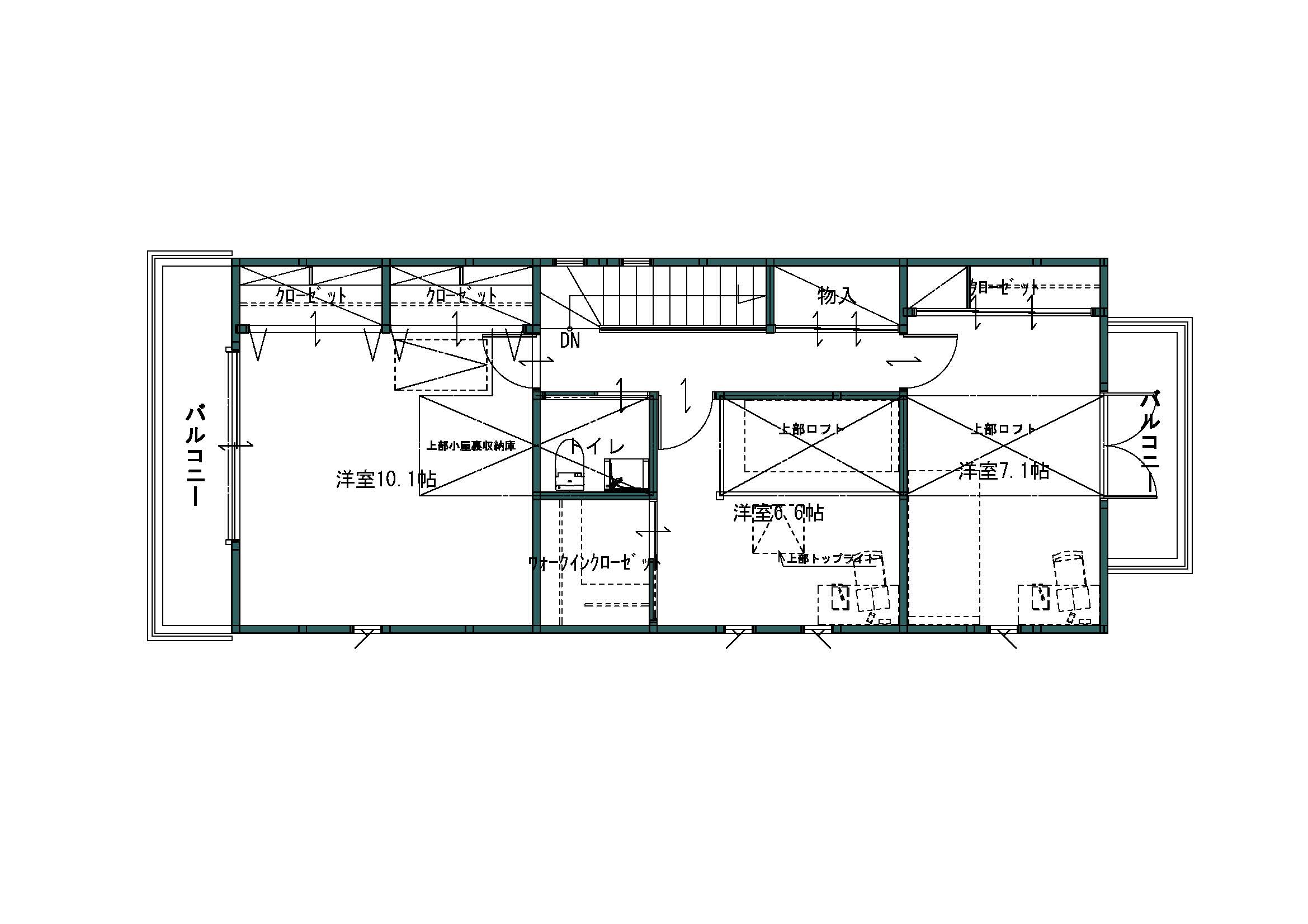
平面プラン
- 1階平面図
- 2階平面図
物件概要:
敷地面積:公簿130.08㎡(39.34坪)
1階床面積:57.19㎡(17.48坪)、2階床面積:59.20㎡(17.90坪)
延床面積:116.99㎡(35.38坪)
現在、東急リバブルにて分譲住宅として販売中。(担当:松尾 浩之)
東急リバブル 物件概要はこちら
また『漆喰の家』にご興味のある方、新築をお考えの方はカドヤ建設までぜひお問い合わせください。















