BLOGBLOG
新築計画『漆喰の家』続き~竣工~

6月も半ばに入り、だんだんと日が伸びて気温も上がってきましたが、梅雨がそろそろ訪れそうです。そんな季節の変化を感じつつ、いよいよ深沢分譲も竣工致しました。つきましては内覧会を開催いたしますので、是非お越し頂ければと思います。(深沢分譲住宅内覧会についてはこちら)
さて、前置きが長くなりましたが、本題の深沢分譲の近況報告をさせて頂きます。前回のブログでは屋根と外壁について書かせていただきましたが、今回は主に内装について書かせていただこうと思います。(前回のブログはこちらから、『漆喰の家』はこちらからどうぞ)
まずはこの写真をご覧頂きたいのですが、近年新築される家は、ほぼ全てこのように断熱材が、外壁と内壁との間に入ります。これにより、家の内部の温度を一定に保ち、夏は涼しく、冬は暖かく過ごしやすくなります。ですから断熱材が入っていないと、建物の性能自体が落ちるので、冷暖房費がかさんだり、大きな規模で考えれば地球環境にも負荷がかかり、良くありません。壁の中なので、工事段階でないと見ることのできない部分でありますが、カドヤ建設ではこういった部分もきちんと施工させて頂いておりますので、ご安心下さい。
そして床に関しましては、『漆喰の家』のコンセプトである、無垢フローリングを採用させて頂いております。参考として、下部画像にて色合いや雰囲気を感じて頂ければと思います。(無垢フローリングについて詳しい内容はこちらからどうぞ)
そして少しながら、写真を載せますので、特に内装に興味のある方は注目です!
- 2階洋室(10.1帖)下地工事完了
- LDK西側壁仕上げ施工前
- 階段工事完了、手すり施工前
この3ヶ所の仕上げをチラッとお見せいたします。それではどうぞ!
- LDK西側壁面タイル張り
- 2階廊下と手すり
- 2階洋室(10.1帖)南側
いかがでしょうか。まだまだこだわりの部分はございますが、内装に関しましては、写真で見た印象と、実際に現地で見た印象とが違う場合が多々ありますので、是非とも内覧会にて実際にご覧になっていただければと思います!
最後に、重複いたしますが内覧会を2週にわたって開催いたしますので、興味をお持ちの方がいらっしゃいましたら是非ともお越しくださいませ。長きにわたりご覧いただきましてありがとうございました。また新築の際に書かせていただきますので、次回も是非ともよろしくお願い致します!
by OZAWA
~深沢分譲住宅~
竣工写真
- 2階主寝室
- 2階廊下と手すり
- 2階東側洋間のトップライトとロフト
- LDK(キッチン側からの様子)
- 外観
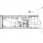
平面プラン
- 1階平面図
- 2階平面図
物件概要:
敷地面積:公簿130.08㎡(39.34坪)
1階床面積:57.19㎡(17.48坪)、2階床面積:59.20㎡(17.90坪)
延床面積:116.99㎡(35.38坪)
現在、東急リバブルにて分譲住宅として販売中。(担当:松尾 浩之)
東急リバブル 物件概要はこちら
また『漆喰の家』にご興味のある方、新築をお考えの方はカドヤ建設までぜひお問い合わせください。













